钢梯护栏图片


钢梯护栏
钢梯护栏基础参数
- 钢梯护栏用料:圆管,方管,角钢,槽钢,方钢
- 钢梯护栏材质:铁,不锈钢,铝合金
- 钢梯护栏厚度:1-3mm 3-10mm
- 钢梯护栏款式:TL1-TL24型号
钢梯护栏应用
钢梯护栏设计荷载
栏杆安装后,顶部扶手应能承受水平和垂直方向不小于 890N的集中荷载和不小于 700N/m 的均布荷载 相邻两个立柱之间的最大挠曲变形不大于跨度的 1/250 中间栏杆应能承受在中点圆周上施加的不小于 集中荷载,最大挠曲变形不大于700N 水平 75mm 承受在立柱顶部祷,力口的任何方向上。端部或末端立柱应能 890N 的集中荷载
钢梯护栏材料与安装
栏杆采用钢材力学性能不低于 格证的钢材Q235-B ,并具有碳含量合 所有栏杆均可用不锈钢制作 栏杆的焊接要求应符合《钢结构工程施工质量验收规范》 GB50205-2001 证结构设计强度的规定。当焊接不便时可用螺栓连接,但应保 钢质栏杆的涂装要求可以热镀锌和喷漆,喷塑 施工中如果用其他型钢取代图集中的立柱或减少立柱截 面尺寸,都应按荷载规范认真核算,以确保安全
钢梯护栏设计选用要点
本图集的作业平台钢梯栏杆分为用于铜板梯梁和槽钢梯 梁两大类距下方相邻地坪 边缘均应设置工业防护栏杆1. 2m 以上的作业平台或工作面所有敞开 作业平台钢护栏高度要求按客户要求和15J401图集标准 高作业场所距基准面高度 900mm< 2m 时,栏杆高度应不低于 高作业场所距基准面高度 不低于2m < 20m 时,栏杆高度应 1050mm 高作业场所距基准面高度 1200mm20m 时,栏杆高度应不低于 在作业平台或工作面上可能使用工具、机器部件或物品 的场合,应在所有敞开边缘设置踢脚板或结构板做翻边,踢脚板的高度不应小于lOOmm "建议采用 100 x 3mm 的钢板 在扶手和踢脚板之间,应设置中间栏杆,确保中间栏杆 与上下构件间形成的空隙间距不大于500mm 本图集提供了栏杆门的做法。栏杆门的高度和式样都应 与作业平台钢护栏的高度和式样相同栏杆门是与栏杆配套选用的,在设计时可根据项目要求 用文字注明,本图集不做编号和代号
钢梯护栏型号介绍
作业平台钢梯栏杆:TL 作业平台钢梯栏杆代号,例如:TLl ,表示钢梯栏杆的编号为 TLl 型 作业平台钢护栏:LG 作业平台钢护栏代号例如:LG2a 一 护栏,高度为1050 ,表示为工业防护栏杆型号为 LG2 的正装式 1050mm
钢梯护栏安装

作业平台钢梯栏杆索引图

作业平台钢梯栏杆索引图

钢梯栏杆详图(用于钢板梯梁)

钢梯栏杆详图(用于钢板梯梁)

钢梯栏杆详图(用于钢板梯梁)

钢梯栏杆详图(用于钢板梯梁)

钢梯栏杆详图(用于槽钢梯梁)

钢梯栏杆详图(用于槽钢梯梁)

钢梯栏杆详图(用于槽钢梯梁)

钢梯栏杆详图(用于槽钢梯梁)

作业平台钢护栏索引图

作业平台钢护栏索引图

LG1 型护栏 羊图

LG2 型护栏详图

LG3 型护栏详图

LG4 型护栏详图

LG5 型护栏详图

LG6 型护栏详图


LG7 型护栏详图

LG8 型护栏详图

LG9 型护栏详图

LG10 型护栏详图

LG11 型护栏 羊图

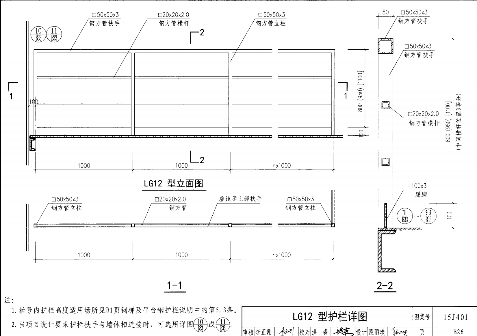
LG12 型护栏详图

LG13 型护栏详图

LG14 型护栏详图

LG15 型护栏详图

LG16 型护栏详图

护栏门立面、剖面图

护栏门详图

护栏节点详图

